Property ID: 1P6247
57-67 Henderson Street Turrella NSW
Contact Agent
-
Industrial
-
For Lease
-
1294 sqm
-
4779 sqm
LARGE HARDSTAND/YARD + WAREHOUSE + OFFICE!
Gunning Real Estate is pleased to present this rare opportunity For Lease. Currently used as a Bus Depot, the property would also suit a wide range of other uses.
The property is strategically located circa 2km east of Sydney Airport and offers easy access onto the M5 & M8 Motorways.
KEY FEATURES
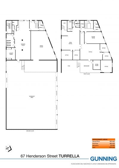
- Land Area: 4,779sqm*
- Ground Floor Building Area: 952sqm*
- First Floor Building Area: 280sqm*
- Mezzanine Area: 62sqm*
- Hence Total Building Area: 1,294sqm*
- Hence Hardstand/Yard Area: 3,827sqm*
- Zone: E4 General Industrial (Bayside Local Environmental Plan 2021)
*Approximately
For more information or to inspect the property, please contact:
James McKenny
0423 048 814
William Gunning
0413 610 194
The property is strategically located circa 2km east of Sydney Airport and offers easy access onto the M5 & M8 Motorways.
KEY FEATURES
- Land Area: 4,779sqm*
- Ground Floor Building Area: 952sqm*
- First Floor Building Area: 280sqm*
- Mezzanine Area: 62sqm*
- Hence Total Building Area: 1,294sqm*
- Hence Hardstand/Yard Area: 3,827sqm*
- Zone: E4 General Industrial (Bayside Local Environmental Plan 2021)
*Approximately
For more information or to inspect the property, please contact:
James McKenny
0423 048 814
William Gunning
0413 610 194
